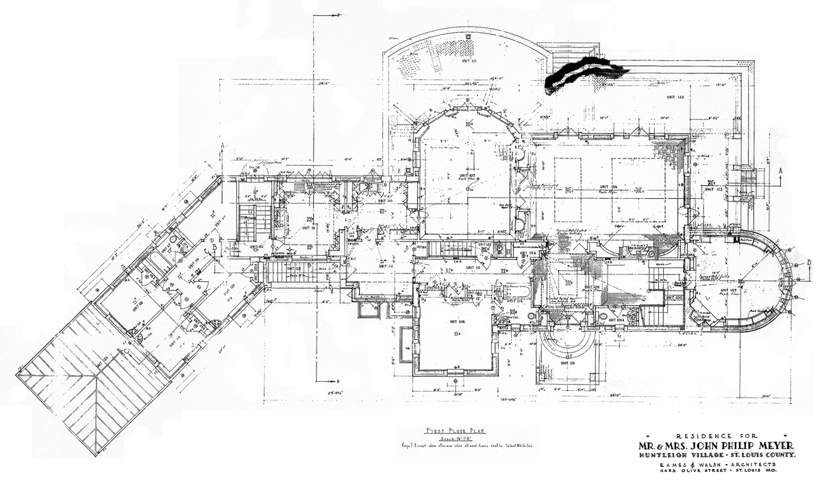
The Meyer House
After John and Alice Meyer read about Charles Eames and Robert Walsh’s church in Helena, Arkansas, the couple commissioned the architecture team to design an expansive, 7,000-square-foot residence in Huntleigh, Missouri. The Meyer House has five bedrooms, four-and-a-half bathrooms, a tennis court, and a greenhouse. Eames and Walsh made custom furnishings for the home, as well as decorative glass, murals, and other site-specific artworks.
According to An Eames Primer, “The finished house is full of treasures. In it, Charles seems to have been exploring curves: a circular library/study opens off a landing on the main stairwell, while a set of nested curves related the back terrace and its view of the gardens to the echoing form of the dining room.”
The deliberately exposed steel beams in the basement foreshadow the Eames House, and the curve of the custom-made aluminum railing presages the later furniture. Narrative bricks built into the house’s exterior walls have something in common with photographs pasted onto one external panel of the Eames House. Ceiling sconces are lined with Japanese rice paper for a subtle lighting effect, much like the Japanese lamp shapes within Charles and Ray’s home.
1936 – 1938
After John and Alice Meyer read about Charles Eames and Robert Walsh’s church in Helena, Arkansas, the couple commissioned the architecture team to design this expansive, 7,000-square-foot house in Huntleigh, Missouri.
The Meyer House has five bedrooms, four-and-a-half bathrooms, a tennis court, and a greenhouse. Eames and Walsh made custom furnishings for the home, as well as decorative glass, murals, and other site-specific artworks.
According to An Eames Primer, “The finished house is full of treasures. In it, Charles seems to have been exploring curves: a circular library/study opens off a landing on the main stairwell, while a set of nested curves related the back terrace and its view of the gardens to the echoing form of the dining room.
“Other kinds of treasures mean even more to those who know the work that would follow: the deliberately exposed steel beams in the basement foreshadow the Eames House, and the curve of the custom-made aluminum railing presages the later furniture. Funny little narrative bricks built into the house itself have something in common with the exterior photographic panel of the Eames House. Ceiling sconces are lined with Japanese rice paper for a subtle lighting effect.”
Learn more about this project by taking a tour with Alice Meyer Gerdine, in this short video by Eames Office director Eames Demetrios.













